0082 / 富山県南砺市 F様

程よい距離感が心地よい
黒×グレー×木目のスタイリッシュな二世帯リノベーション

  • #90㎡以上
  • #2000万円以上
  • #モダン
  • #スタイリッシュ
  • #二世帯

家族みんなが笑顔になれる、2つのリビングがある家

「新築になったみたい! 初めてのマイホームができた気分で暮らせています」。そう語るのは、大人5人・子ども5人の大家族ならではの賑やかな毎日を送るF様ご一家です。
リフォームで最も実現したかったのは、大家族が程良い距離感で暮らせる住まいづくりです。これまでは居間がひとつしかなく、団らんする部屋も狭かったため、リビングを分けて広くしたいという要望がありました。

  • 施工エリア

    富山県南砺市

  • 物件種別

    戸建て

  • 築年月

    27年

  • 施工面積

    179.5㎡

  • 家族構成

    祖父母、夫婦、子供3人、妹さん、妹さん子供2人(10人家族)

  • 間取り

    4SLDK

  • 工事費

    2,500万円

  • 施工期間

    200日間

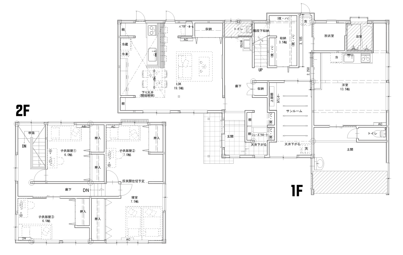
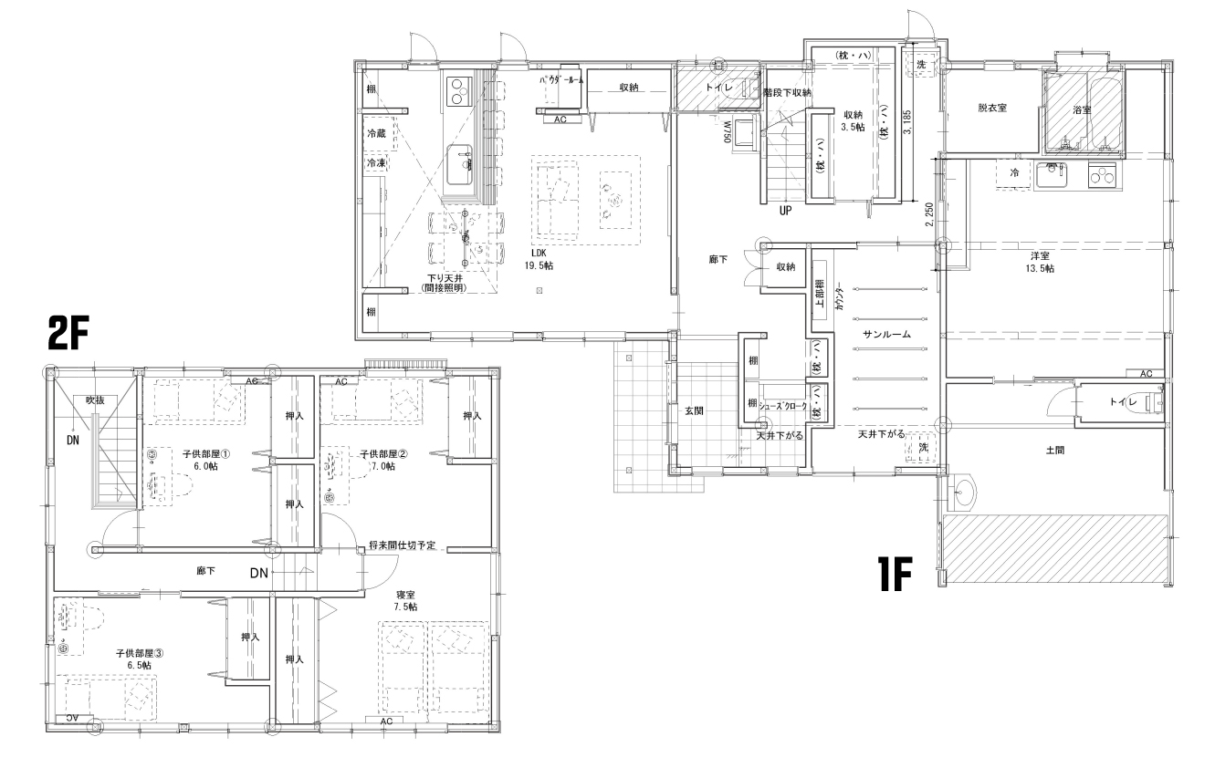
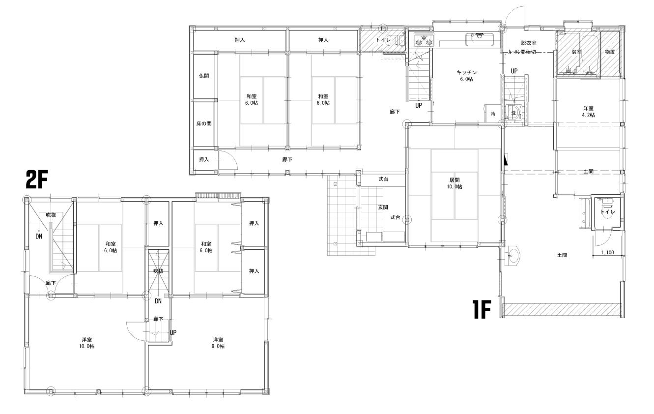
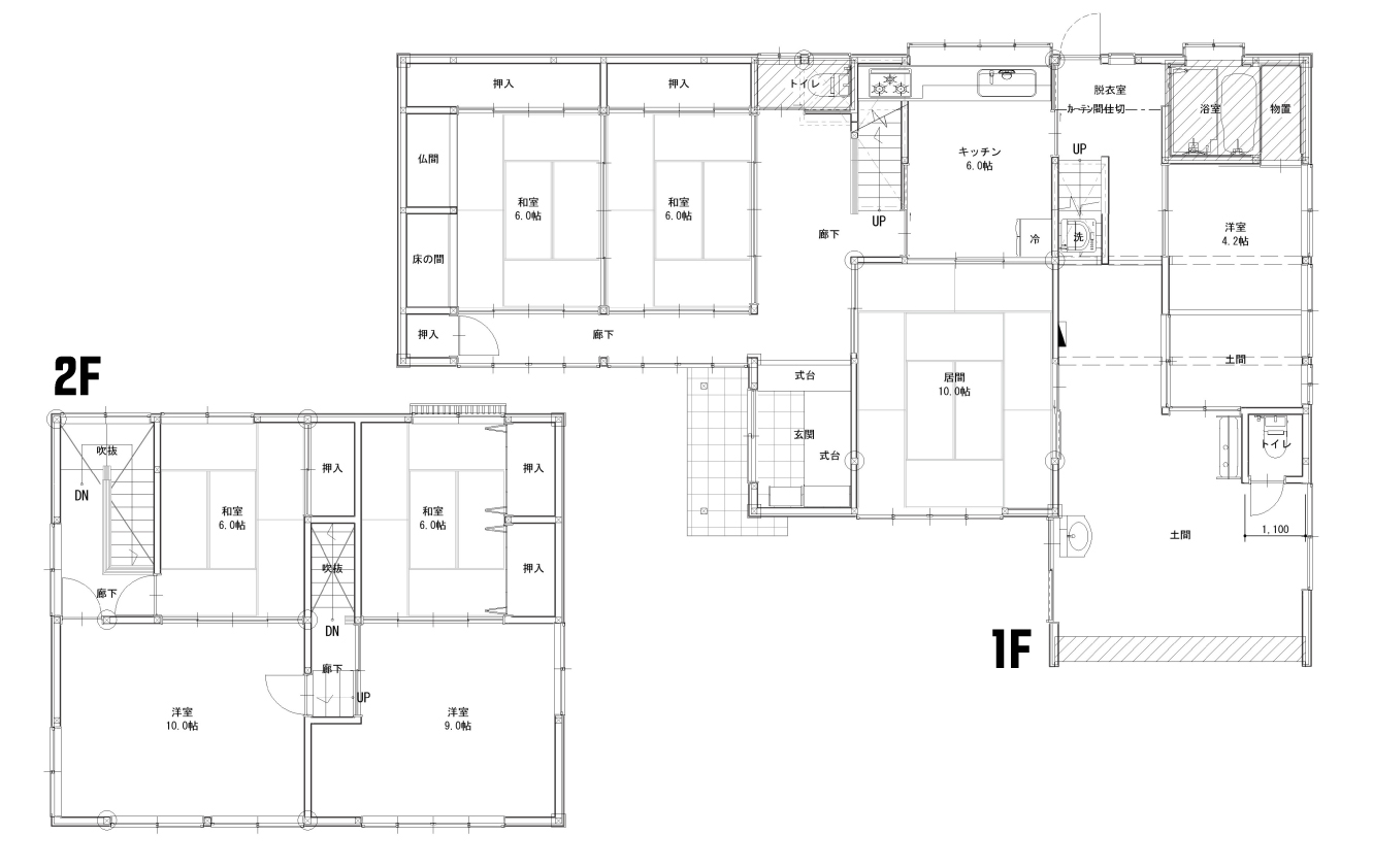
Plan

間取り図

  • Before
  • After

あまり使われていなかった二間続きの和室を若世帯の新しいLDKへと大改修。10人家族がゆったりと暮らせる広々としたLDKを2つ確保することができました。

Point

リフォームのポイント

  • 「黒を基調にしたスタイリッシュな空間」。黒・グレー・木目の3色で統一されたインテリアは、落ち着きがあり洗練された印象です。

  • 間接照明を入れた下がり天井が空間のグレードを上げています。

  • カウンターと壁の間のコーキングがない、トクラスのハイバックレール。お手入れしやすく、ハンガーラックも使えて便利。

  • 家電も黒で統一したハイセンスなキッチン。

  • キッチン横の可動棚には、白で統一された収納用品が並びます。見た目もすっきり整い、気持ちよく使える空間になりました。

  • リビング側からは見えないようレイアウトされたパウダースペース。ロールスクリーンでさっと目隠しすることもできます。

  • 親世帯のLDK。2つあった階段を1つなくしてスペースを確保しました。

  • キッチンを別々に設けたことで、生活時間の違いを気にせず過ごせるようになり、二世帯の間に心地よい距離感が生まれたといいます。

  • 以前はカーテンで仕切られていた脱衣所ですが、今回のリフォームで個室に。扉を設けたことで、プライバシーがしっかり守られる空間になりました。

  • 玄関近くに洗面台の下台のみを設置。帰宅後すぐに手を洗える位置にあるので、自然と手洗いの習慣が身につきます。

  • お子様の個室も整えました。今はまだリビングで学習されていますが、もう少し成長されたら、こちらで落ち着いて勉強できるようになります。

  • こちらの部屋は将来的に区切れるような仕様に。今は広々とフレキシブルに活用いただけます。

  • ランドリールームの正面にはW.I.Cを。洗う・干す・しまうの流れが一連で完結し、毎日の家事がスムーズに。

  • 玄関は来客用と家族用の入り口を分け、シューズクロークを備えた機能的な空間に。いつでもすっきりと整った印象を保てます。

  • 靴をオープン収納しても来客の目に触れることのないファミリー玄関。

  • アルミ外壁材でスタイリッシュに生まれ変わった外観。長く美しさを保てる、デザイン性と耐久性を兼ね備えた仕上がりです。

わたしたちが担当させていただきました。

Comment

担当スタッフからのコメント

内装のテーマは、奥様の希望である「黒を基調にしたスタイリッシュな空間」です。黒・グレー・木目の3色で統一されたインテリアは、落ち着きがあり洗練された印象。特にショールームでひと目惚れしたというトクラスの黒いキッチンはLDKの主役となり、日中は子どもたちと賑やかに、夜は夫婦でお酒を楽しむ落ち着いた空間として、多彩な表情を見せています。
リビングの一角に設けられたパウダースペースは、奥様のお気に入りポイントです。これまで1階と2階を行き来して身支度していたのを、1階で完結できるしたいとのご要望により実現。リビング側から見えないようレイアウトにも配慮しました。奥様自らが選び購入されたLEDミラーが、毎日使う場所を心ときめく空間に仕上げています。
家族の多さを考慮した設計も特徴的です。これまで洗濯物を干す場所の確保も大変だったことから、約8帖の広々としたランドリールームを計画し、真向かいにはウォークインクローゼットを設けました。これにより、洗濯から収納までの時短を叶えました。さらに、玄関まわりにはシューズクローゼットとファミリー玄関を設け、家族と来客の動線を分けることで使いやすく整理された空間を実現。家族の多い住まいでも、玄関がスッキリと保てる工夫を凝らしています。
もともとは階段が2つあり、2階に段差がある独特な構造。段差は無理に解消せず、階段を1つに減らして空間を確保し、段差部分はステップフロアを設けることで対応しました。小さなお子様と接する時間を考慮し、3つある子ども部屋のうちの1つは夫婦の寝室と繋げ、将来仕切れるように設計しています。
リフォーム後、設備の一新と断熱性の向上により、暮らしの快適性は大幅に改善。お子様たちが自宅に友達を呼ぶ機会も増えたそうです。特に「キッチンが別になったことで、習い事で帰りが遅くなる子どもの食事の用意など、時間を気にせず使えるようになりました」と、生活リズムの違いにも柔軟に対応できる環境が整いました。大家族がそれぞれに心地よく暮らせる距離を保ちながら、一体感も感じられる。そんな“住まいの理想形”を体現したリノベーションとなりました。

Archives

最新の施工事例

前へ
次へ

Contact

お気軽にご相談ください

小さな疑問にも、プロとして誠心誠意お答えします。
お気軽にお問い合わせください。

0120-12-8079

(OPEN:9:00~18:00 CLOSE:火曜日・水曜日)

電話番号をタップで発信できます。