0084 / 石川県鹿島郡 T様

ご夫婦と愛犬が心地よく暮らす、T様邸のフルリノベーション

  • #80~90㎡
  • #1000~1500万円
  • #ナチュラル
  • #シンプル
  • #セカンドライフ
  • #ペット

家族も愛犬ものびのび暮らせる、優しさで満たした住まいへ

長年の暮らしのなかで段差や動線の使いにくさが気になり始め、日々の生活に小さな負担が積み重なっていたT様。
限られた空間をできるだけ広く使いたいという想いに加え、収納はきちんと確保したいというご要望もありました。
さらに、愛犬がのびのび過ごせる環境を整えつつ、帰省するご家族がゆったり寛げる場所にしたい――。
こうした複数の思いが重なり、暮らしをより心地よく整えるためのリノベーションを決断されました。

  • 施工エリア

    石川県鹿島郡

  • 物件種別

    戸建て

  • 築年月

    50年

  • 施工面積

    89.5㎡

  • 家族構成

    ご夫婦

  • 間取り

    2LDK(1階のみ)

  • 工事費

    1,480万円

  • 施工期間

    60日間

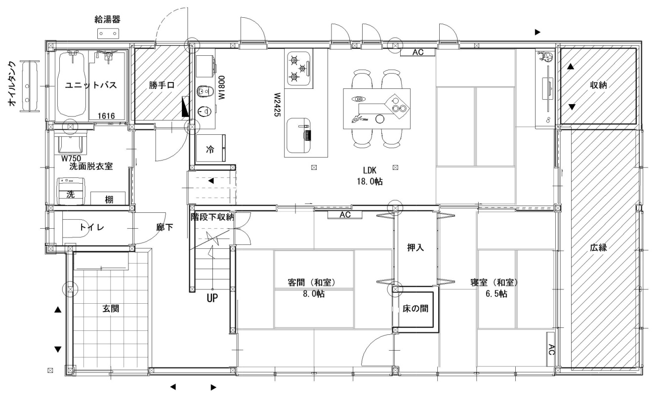
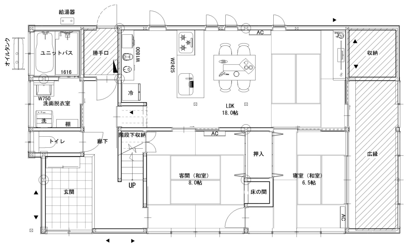
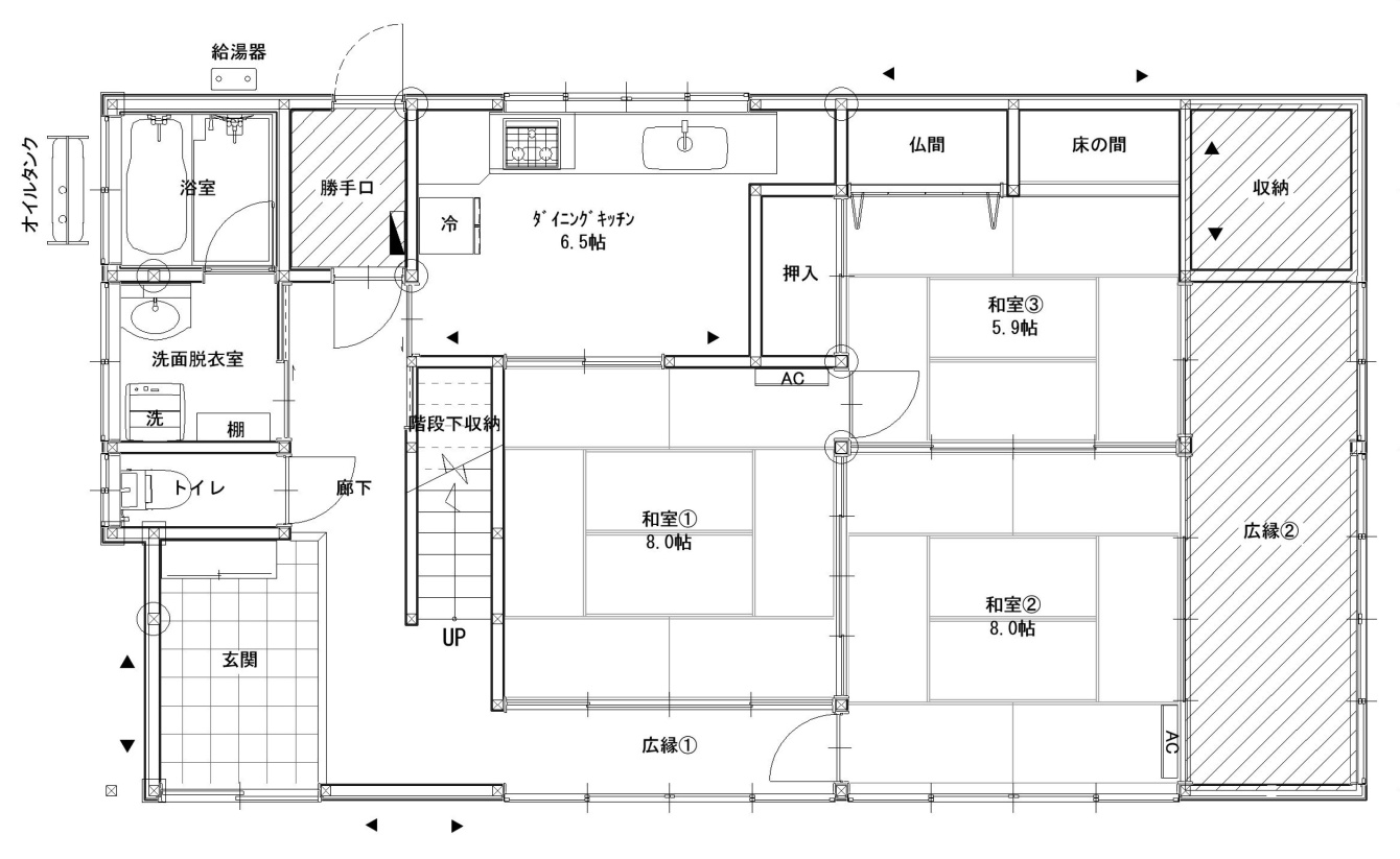
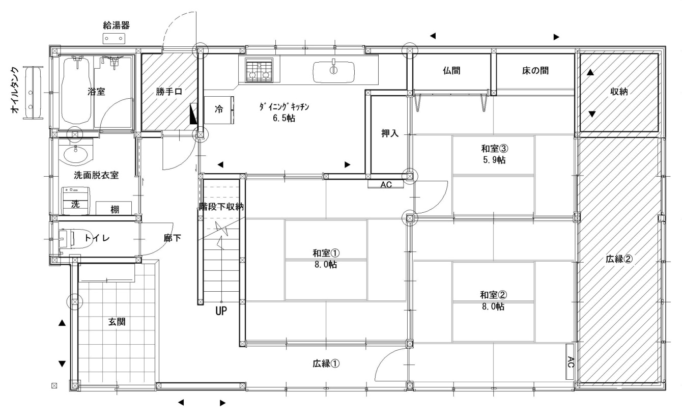
Plan

間取り図

  • Before
  • After

これまで大切に住み継がれてきた住まいを、これからの暮らしにより寄り添う形へと整えるため、1階部分を丸ごと見直すフルリノベーションがスタートしました。
きっかけは「愛犬がのびのび過ごせる空間にしたい」という想い、そして帰省したご家族がゆったり寛げる間取りにしたいというご希望でした。長年の生活の中で生じた段差や使いづらい動線は、日常の小さなストレスに。限られた空間をより広々と、そして心地よく使いたいという願いが、今回のテーマとなりました。

Point

リフォームのポイント

  • お家を支える大切な柱。今までは壁の中に隠れていましたが、リフォームを機に、リビングのアクセントとして美しく際立っています。

  • キッチン背面の収納も便利で、機能性とデザインが調和し広い天板を備えた対面スタイルです。

  • キッチンは、LIXILシエラ ペニンシュラ(背面収納タイプ)人工大理石の白く明るい天板は美しく、広い作業スペースが使いやすいとお喜びいただいてます。

  • 三枚引き戸を開け放つと畳が続き、リビングとひとつながりになる開放的な和室に。

  • 収納は客間と和室の双方から使えるつくりで、ご家族が集まる際のお泊まり準備もスムーズに整います。

  • 大容量のシューズボックスを設置しました。
    玄関まわりをいつも素敵に飾られるお客様にとって、装飾品をすぐ近くにしまえる便利さが大変喜ばれています。

  • 大容量の造り付けのキャビネットで洗面周りが使いやすくもすっきり整います。

  • キャビネット一体型ですっきりとした上品な印象のトイレ。ちょっとした収納があるのも便利です。

わたしたちが担当させていただきました。

Comment

担当スタッフからのコメント

まず取り組んだのは、段差の解消です。愛犬にもご夫婦にも優しい、フラットで安全な生活動線へと刷新しました。
さらに「広々使いたい、でも収納はしっかり確保したい」というご要望に応えるため、限られたスペースの中で必要な収納を計画的に配置。すっきりと片付き、のびのびと暮らせる空間が生まれました。
リビングと隣室の間仕切りは、大きく開放できる造りへ変更。扉を開け放つと畳スペースまでひと続きとなり、ご家族が帰省される際には大きな一体空間として活用できます。普段は落ち着いたリビングとして、来客時には“みんなが集まる場”として、シーンに合わせて柔軟に表情を変える空間です。
キッチンは、広い天板を備えた対面スタイルへ。料理をしながら会話が弾み、リビングで過ごす家族や愛犬の様子を感じられる、温かな一体感のある場所になりました。家事効率だけでなく、「一緒に過ごしている」と感じられる時間が増えたことも大きな喜びです。
T様邸は、ご夫婦と愛犬、そして帰省するご家族を優しく迎える住まいへと生まれ変わりました。
広さ、使いやすさ、安心感。大切にしてこられた想いがひとつひとつ形となり、これからの暮らしを心地よく支える“新しい我が家”が完成しました。

Archives

最新の施工事例

前へ
次へ

Contact

お気軽にご相談ください

小さな疑問にも、プロとして誠心誠意お答えします。
お気軽にお問い合わせください。

0120-12-8079

(OPEN:9:00~18:00 CLOSE:火曜日・水曜日)

電話番号をタップで発信できます。