0088 / 富山県黒部市 S様

家族が集う、ぬくもりを紡ぐLDKリノベーション

  • #~50㎡未満
  • #1000~1500万円
  • #モダン
  • #セカンドライフ

「夫婦のこれから」と「家族が集う時間」をつなぐ、 和の趣と現代の快適性が調和する住まい

子どもたちが巣立ち、これからはご夫婦二人での穏やかな暮らしを見据えて、水廻りとLDKのリフォームを行いました。築約60年が経過し、床のへこみや設備の劣化が目立ち始めていたことも大きなきっかけです。

  • 施工エリア

    富山県中黒部市

  • 物件種別

    戸建て

  • 築年月

    58年

  • 施工面積

    46.89㎡

  • 家族構成

    ご夫婦

  • 間取り

    -

  • 工事費

    1,500万円

  • 施工期間

    80日間

Plan

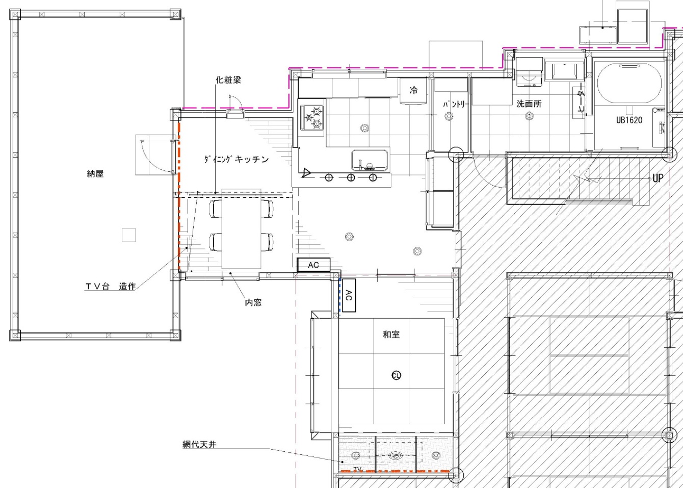
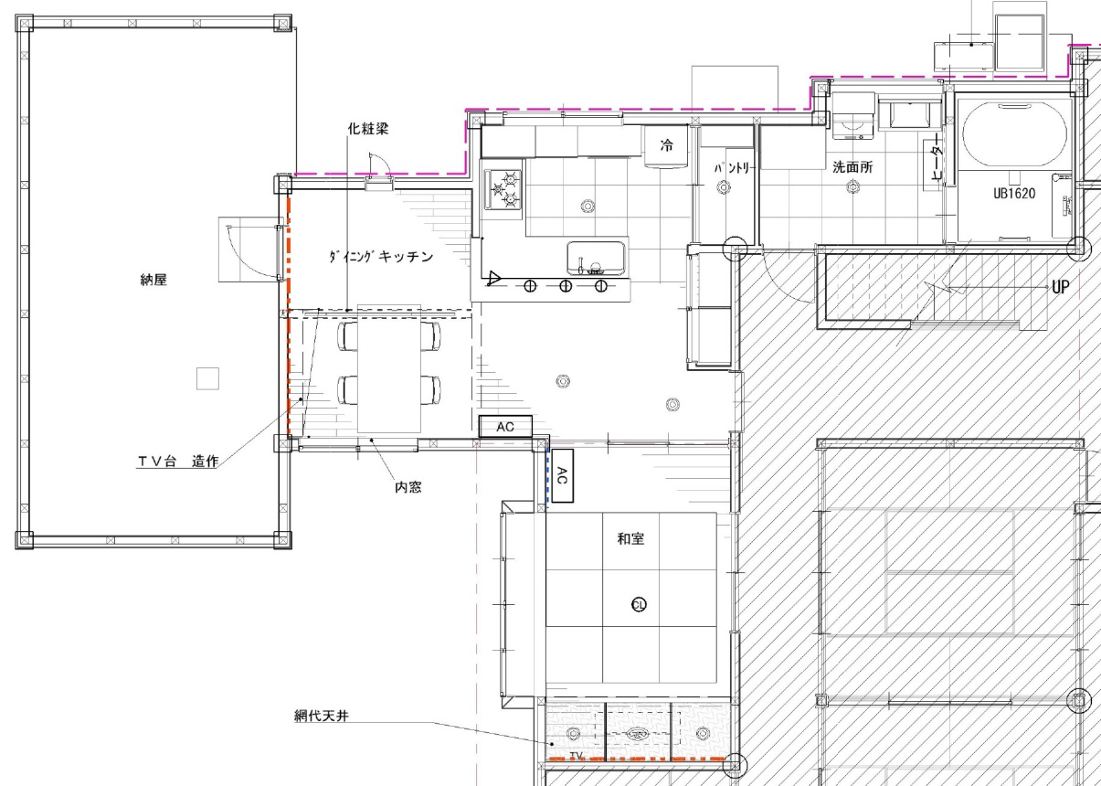
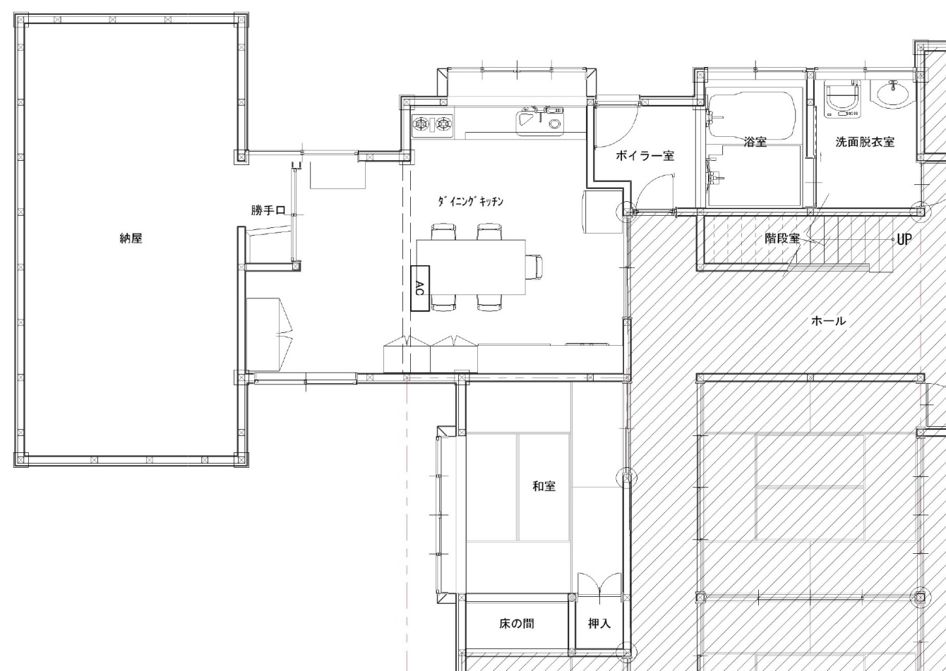
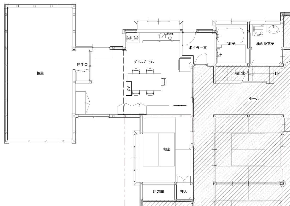
間取り図

  • Before
  • After

キッチンと和室をつなげ、家族が自然と集まるLDKへと間取りを一新。回遊性のある動線と視線の抜けを意識し、どこにいてもつながりを感じられる空間に仕上げました。

Point

リフォームのポイント

  • 撤去できないH鋼を、空間の一部として取り込む設計に。ゆるやかな区切りを生み出し、空間にメリハリを与えています。

  • ダイニングは天井をあえて剥き出しにし、船底天井を採用。ラワンベニヤを張ることで素材感を活かし、ライン照明で空間をすっきりと見せました。

  • どうしても抜けなかった壁がかえって心地よい「おこもり空間」を演出しています。

  • 集成材で造作したオリジナルのテレビボード。あえて斜めに配置することで、空間のどこにいても自然にテレビを楽しめる設計です。

  • キッチンからリビング・ダイニングを見渡せる開放的なレイアウト。テレビも見やすい位置に配置し、炊事の時間もくつろぎのひとときとして楽しめる空間に仕上げました。

  • 伝統的な網代天井をアクセントにした和室リビング。やわらかなダウンライトの灯りが、落ち着きのあるくつろぎ空間を演出します。

  • 床の間の面影を大切に、杉の突板による落とし掛けを設置。ラワンベニヤの天井と竹の竿縁が、やわらかな和の趣を演出します。

  • キッチンから続くリビングには、冷暖房効率を高めるため3枚引き戸の間仕切り建具を設置。

  • 丸みのあるペンダントライトを取り入れ、空間にやわらかなアクセントをプラス。シンプルな中に、さりげない個性を添えています。

  • 食器棚は扉内に収め、生活感を抑えたすっきりとした空間に。機能性を保ちながら、整った美しさを演出しています。

  • パントリーを設けることで、収納と動線を効率化。物が表に出にくく、すっきりとした空間を保てる設計に仕上げました。

  • コの字型に配置されたキッチンは、動線がコンパクトで無駄のないレイアウト。快適な家事時間を叶えます。

  • たっぷり収納で使いやすい脱衣スペースに。高窓からやさしい光を取り込みつつ、外からの視線も防ぎます。

  • 窓をなくすことで断熱性を高め、暖かさを追求したバスルーム。リビングからの動線にも配慮し、使いやすい位置へと配置を見直しました。

わたしたちが担当させていただきました。

Comment

担当スタッフからのコメント

お孫さんがよく遊びに来られることから、家族が自然と集まれる団欒の空間づくりを重視。キッチンと和室を一体化し、開放感のあるLDKへと生まれ変わりました。
ダイニングは想定より天井高が確保できなかったため、船底天井を採用し、化粧梁で補強。構造的な課題をクリアしながら柱を抜くことにも成功しました。ライン照明を取り入れることで、空間全体をすっきりとした印象に仕上げています。
「テレビを見ながら食事を楽しみたい」というご夫婦のご要望に応え、造作テレビボードはあえて斜めに配置。どこからでも見やすい工夫を施しました。キッチンは対面式のL字型とし、料理をしながらテレビを楽しめるだけでなく、お孫さんの様子も見守りやすい安心のレイアウトに。食器棚やパントリーも設け、生活感を抑えた美しい収納計画を実現しました。
キッチンから続くリビングには、冷暖房効率を高めるため3枚引き戸の間仕切り建具を設置。和室の一部には網代天井を採用し、細部までこだわりを感じられる和の趣を残しています。
さらに、内窓の設置やサッシの交換、天井・床・壁への断熱材充填により、住まい全体の断熱性能も向上。冬でも暖かく、心地よく過ごせる空間となりました。
リフォーム後は「自然とリビングにいる時間が増えました」とのお声も。ご夫婦が思い描いていた家族団欒の住まいが実現した、これからの暮らしに寄り添うリノベーションです。

Archives

最新の施工事例

前へ
次へ

Contact

お気軽にご相談ください

小さな疑問にも、プロとして誠心誠意お答えします。
お気軽にお問い合わせください。

0120-12-8079

(OPEN:9:00~18:00 CLOSE:火曜日・水曜日)

電話番号をタップで発信できます。