0085 / 富山県射水市 T様

のびやかに暮らす──3人兄弟で育ったご夫婦が選んだ、
未来まで心地よい住まい

  • #90㎡以上
  • #2000万円以上
  • #インダストリアル
  • #モダン

広さと心地よさを手に入れた、大人のリノベスタイル

幼い頃からどちらも兄弟に囲まれ、賑やかに育ったご夫妻。当初は建売住宅を検討していたものの、「もっと広く、のびのび暮らしたい」という想いから、中古住宅を購入してのリノベーションへと舵を切りました。

  • 施工エリア

    富山県射水市

  • 物件種別

    戸建て

  • 築年月

    35年

  • 施工面積

    117.5㎡

  • 家族構成

    ご夫婦

  • 間取り

    4LDK

  • 工事費

    2,061万円

  • 施工期間

    95日間

Plan

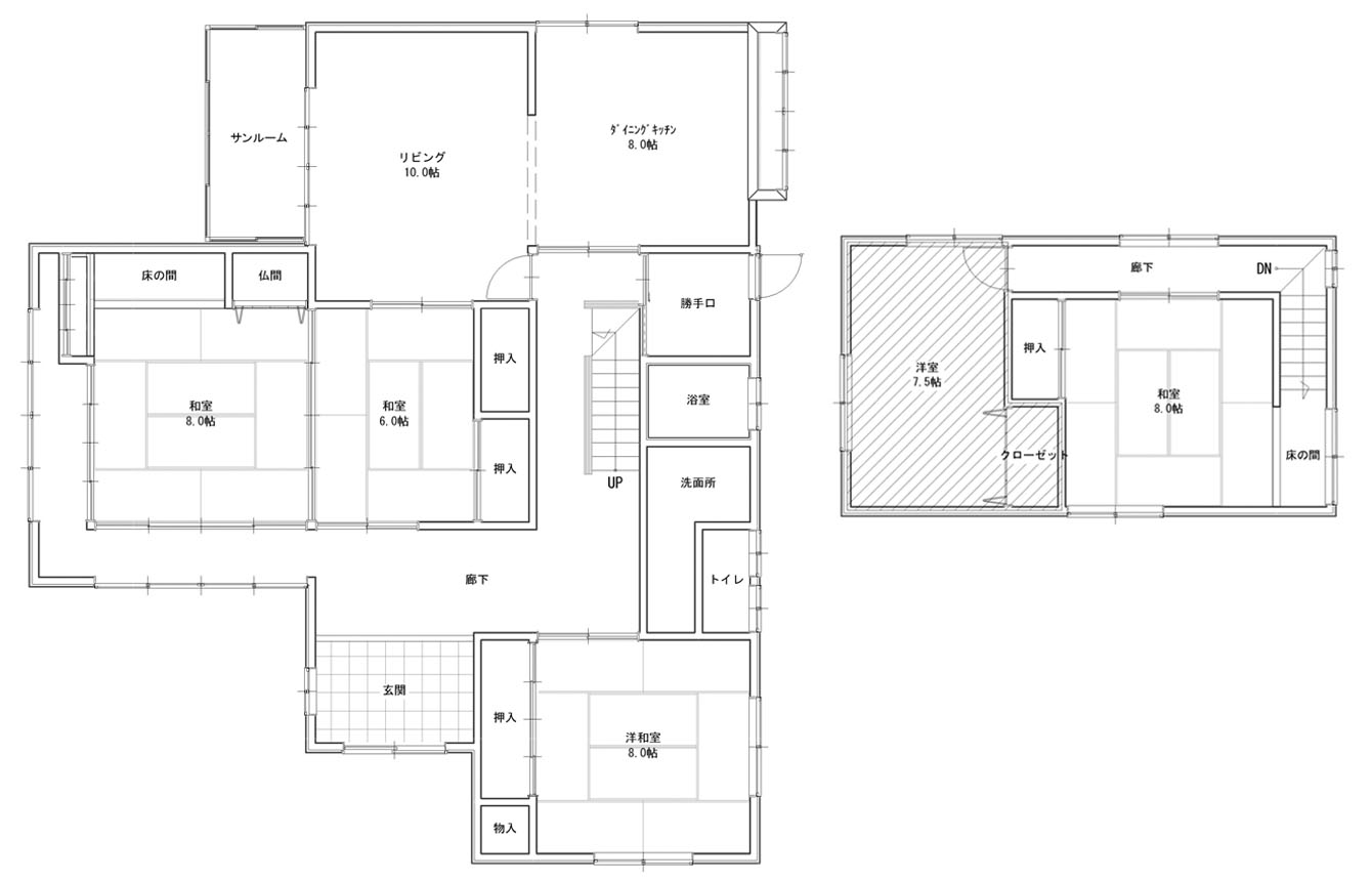
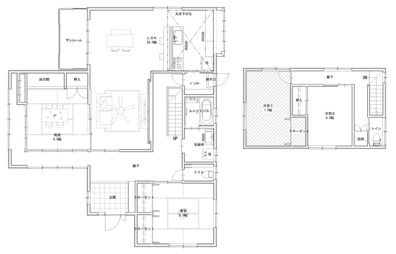
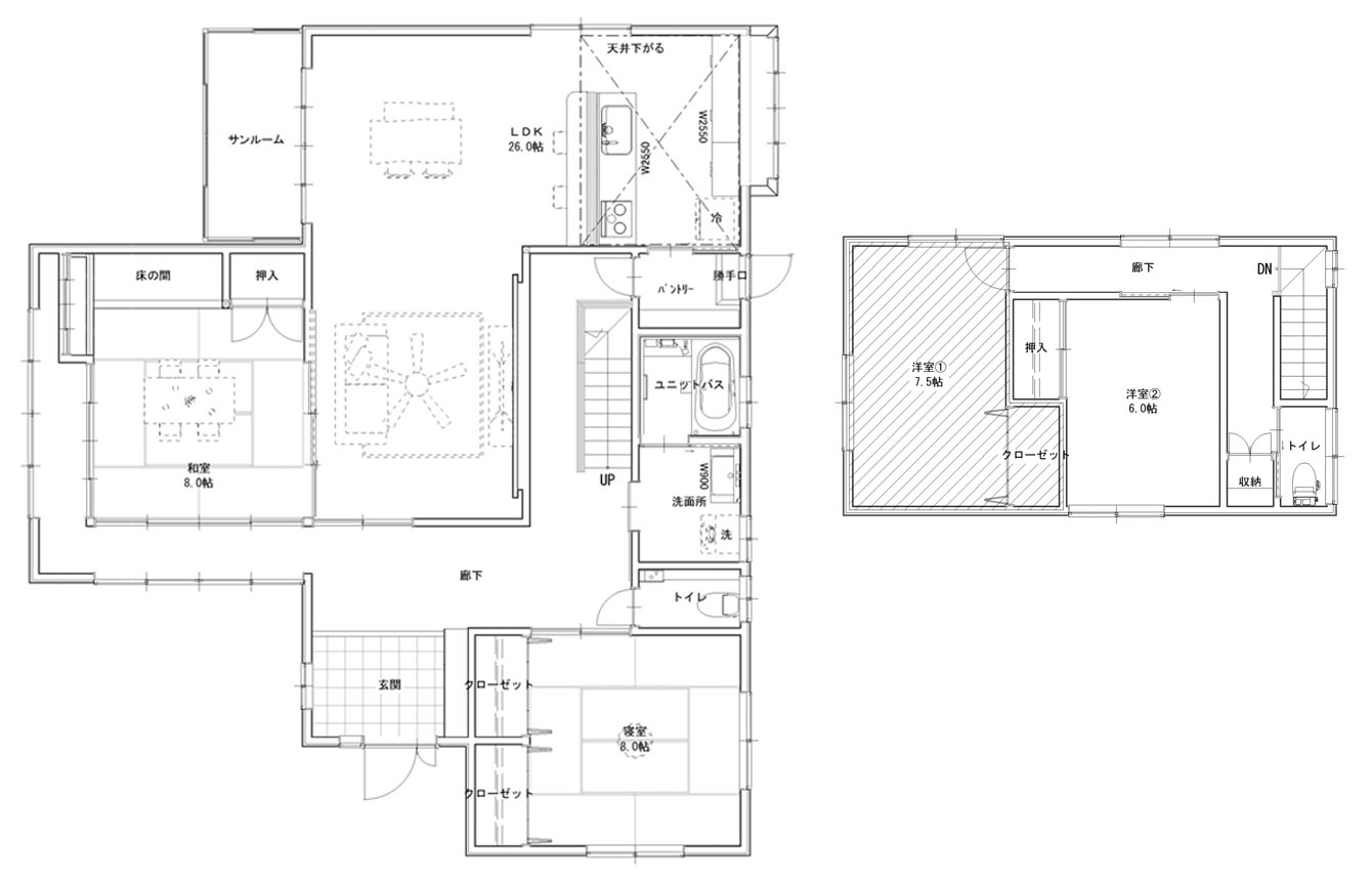
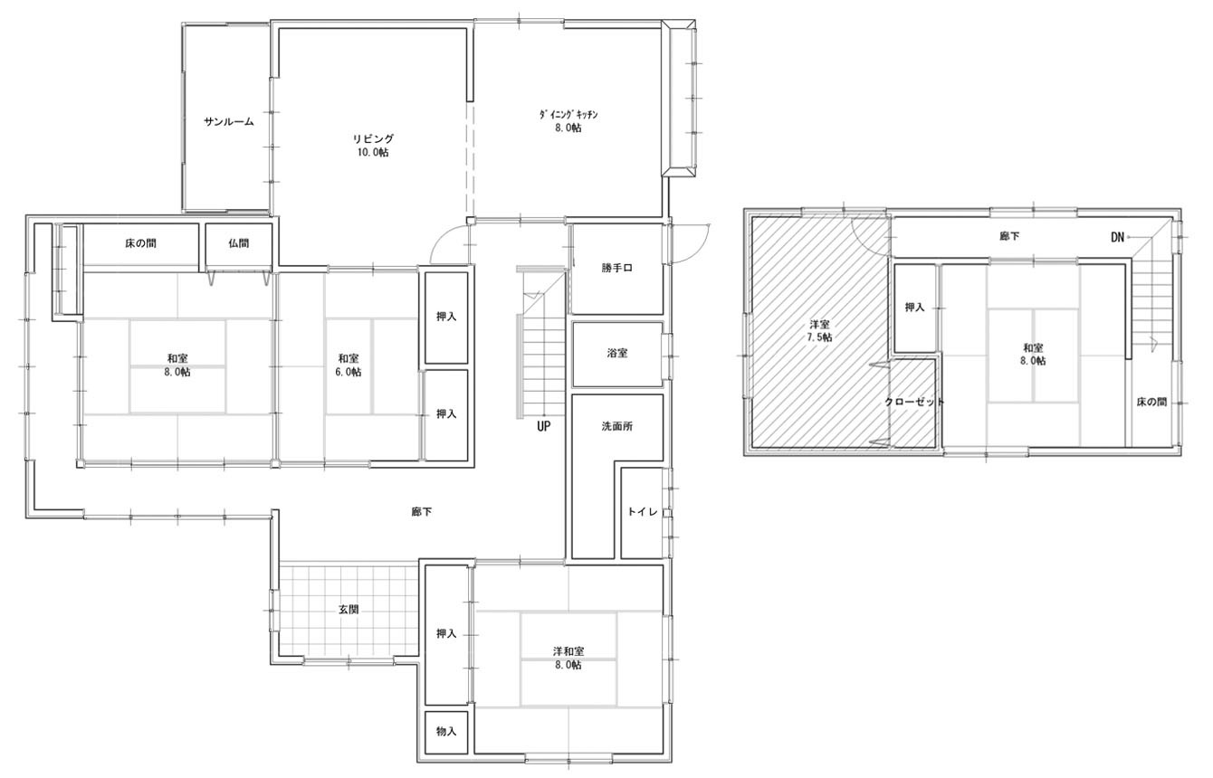
間取り図

  • Before
  • After

ご結婚を機に中古住宅を購入し、リフォームを決意されたご夫妻。
幼い頃からそれぞれ三人兄弟に囲まれ、賑やかな空気の中で育ってきたお二人が選んだのは、“広さ”と“のびのびと暮らせる開放感”を大切にできる住まいでした。
建売住宅では価格や間取りの制約から理想が実現できず、より自由度の高い中古住宅+リノベーションという選択へ。
ご夫妻の新しい暮らしに、伸びやかで心地よい住まいがふさわしい――そんな思いを形にした住まいです。

Point

リフォームのポイント

  • リビングには間接照明を忍ばせ、穏やかな光が広がるくつろぎの空間に。あえて壁を出して、光を美しく見せるために設えた“意匠壁”が、空間の質を一層引き立てます。

  • ファン付きの照明を採用したリビングは、空調が効率よく巡る快適な空間に。広々としたLDKでありながらも、随所に工夫を散りばめることで、季節を問わず心地よく過ごせる住まいを実現しています。

  • 広いLDKが単調にならないよう、キッチンには下がり天井を採用。高さのリズムを生み出し、空間をやわらかくゾーニングしています。

  • キッチンの奥には大容量パントリーを。買い置きの食材や調理家電まで余裕をもって収められるため、キッチンまわりはいつも整った状態に保てます。

  • キッチン横には大容量のパントリーを配置。両方向から出入りできる設計で、リビングを通らずに動けるスムーズな動線が魅力です。

  • 天然木の突板がもつやわらかな色合いが、LDK全体に明るさを添える空間。グレー×ブラックの上質な趣の中に、ほどよい温かみがひときわ映えます。

  • グレーで統一した水廻りは、落ち着きある上質な雰囲気に。玄関からすぐアクセスできる動線が、日々の使い勝手をいっそう高めています。

  • 寝室横にレイアウトしたトイレは、玄関からのアクセスも良好。家のどこからでも使いやすい、快適な動線が整えられています。

  • 来客を迎える玄関と廊下は広々としたつくりで、T様邸ならではのおもてなしの心が感じられます。

  • 直線的でミニマルなフォルムが特徴のスクエア手すり。主張しすぎない佇まいで空間に溶け込みつつ、上質な意匠性を静かに引き立てています。

  • 将来を見据え、2階にもトイレを設置。今後ご家族が増えても安心です。

  • 2階の居室には内窓を取り付け、和室から洋室へと心地よく整えました。

  • 友人の多いご夫婦に合わせて、駐車スペースは最大6台を確保。庭まわりを整え、カーポートも新設し、来客時にもゆとりを感じられる外構へと整えました。

わたしたちが担当させていただきました。

Comment

担当スタッフからのコメント

今回の住まいの主役は、L字に大きく広がる26畳のLDK。家族が思い思いに過ごしながらも、心地よくつながれるゆとりある空間です。
キッチン横には両方向から出入りできるパントリーを設け、リビングを横切らずに動ける“家事ラク動線”を実現しました。
1階には将来を見据えて主寝室を配置。すぐ隣にトイレ・洗面・浴室をまとめ、水まわりへの移動負担をぐっと軽減。長く安心して暮らせるレイアウトです。
空間のコーディネートは、落ち着きのあるグレートーンで統一。
キッチンには下がり天井を施し、やわらかく空間をゾーニング。
リビングはただクロスを替えるだけではなく、あえて壁を出し、間接照明を仕込んだ上質な趣に仕上げています。
さらに南面には光がたっぷり入る大きなサンルームも。家事にも、くつろぎ時間にも大活躍です。
そして驚くのが、広いリビングでもエアコン1台で暖かくなる快適性。
断熱性能をしっかり高めたことで、デザイン性はもちろん、住み心地も大きく向上しました。
家族の記憶と未来の暮らしを、ひとつの住まいにやさしく重ねていく──
そんな丁寧な時間が流れる、素敵なリノベーションになりました。

Archives

最新の施工事例

前へ
次へ

Contact

お気軽にご相談ください

小さな疑問にも、プロとして誠心誠意お答えします。
お気軽にお問い合わせください。

0120-12-8079

(OPEN:9:00~18:00 CLOSE:火曜日・水曜日)

電話番号をタップで発信できます。